朝阳区平房乡黄杉木店亮马厂安置房项目(西区)方案公示
本项目为黄杉木店和亮马厂平房区城中村改造项目安置房,位于平房乡0318-01地块,东至规划青年北路,南至规划姚家园路,西至星火东路,北至规划新村一路和规划姚家园西里中路(具体方案和规划指标详见附图)。根据《城乡规划法》、《北京市城乡规划条例》等有关规定,现就规划方案进行公示,征求规划地段内利害关系人和公众的意见,依据市规划自然资源委《关于做好房屋建筑工程规划设计方案批前公众参与的通知(试行)》等文件要求,公示期限自公布之日起7个工作日。公示期间,若有意见,请发表在评论区向我局提交反馈意见。我局将及时研究,并将采信结果在本网站通告。逾期不提交的,视为没有意见。附件:朝阳区平房乡黄杉木店亮马厂安置房项目(西区)方案公示图.pdf






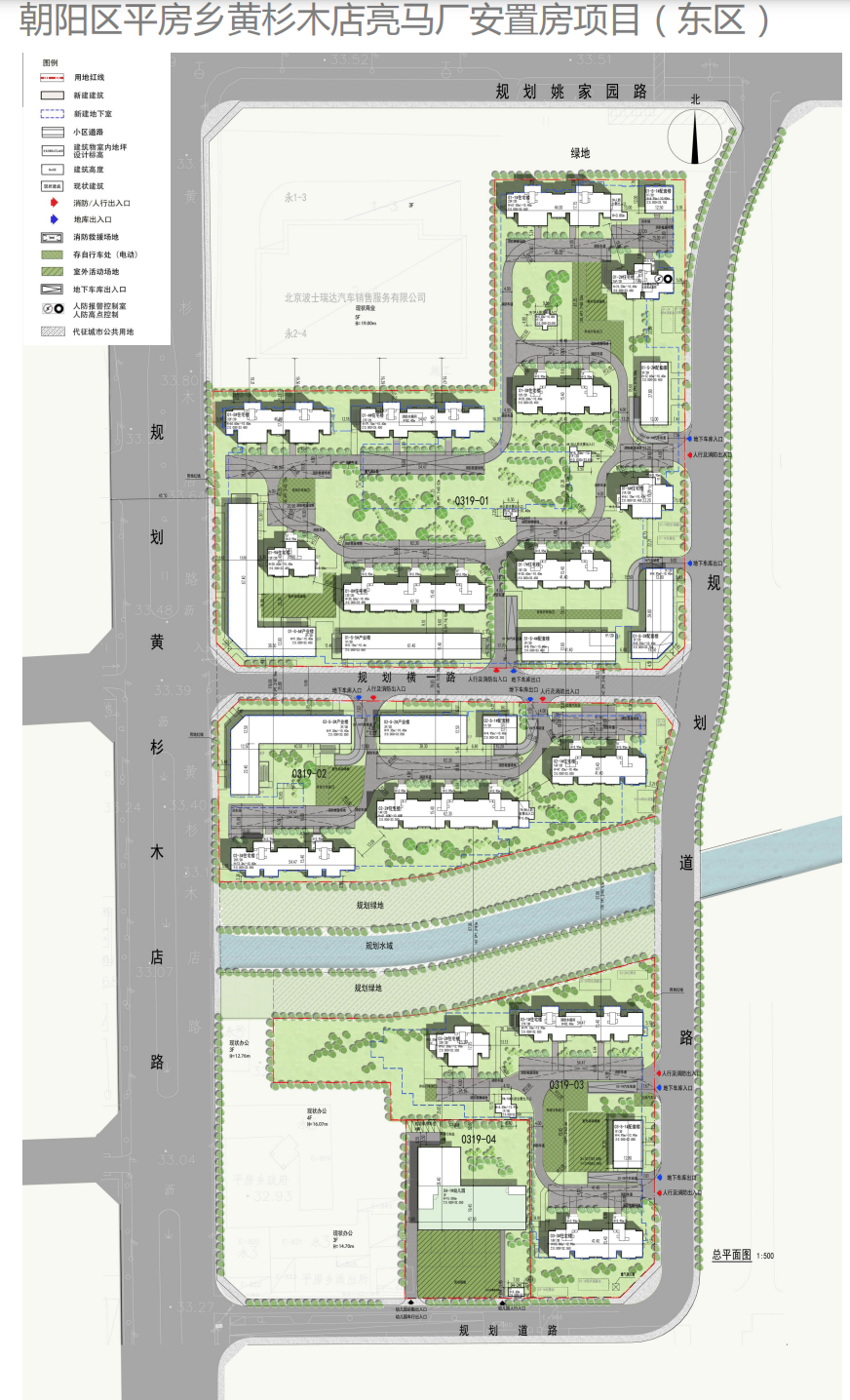
朝阳区平房乡黄杉木店亮马厂安置房项目(东区)方案公示

本项目为黄杉木店和亮马厂平房区城中村改造项目的安置房用地,位于平房乡0319-01、0319-02、0319-03、0319-04地块,东南至规划道路,西至规划黄杉木店路,北至规划姚家园路。(具体方案和规划指标详见附图)。根据《城乡规划法》、《北京市城乡规划条例》等有关规定,现就规划方案进行公示,征求规划地段内利害关系人和公众的意见,依据市规划自然资源委《关于做好房屋建筑工程规划设计方案批前公众参与的通知(试行)》等文件要求,公示期限自公布之日起7个工作日。公示期间,若有意见,请发表在评论区向我局提交反馈意见。我局将及时研究,并将采信结果在本网站通告。逾期不提交的,视为没有意见。附件:朝阳区平房乡黄杉木店亮马厂安置房项目(东区)方案公示图.pdf









获取更多拆迁腾退旧改的消息,可关注朝阳潮攻略查看:查询方法
长按识别下方二维码
在首页聊天对话框内
回复【拆迁】获取