#东坝回迁房#
相关链接:
讲解视频:(来源网友冬芳)
项目信息:
京投公司承建,东坝北西区域共建设41栋住宅楼,分布在八个地块,地块编号为3——10地块,其中最高为28层,最低为10层,均为2梯4户,地下为3层,车位配比为1:1,所有楼栋电梯都可直抵地下车库。
北西区域共提供对应安置房源6000余套,其中建筑面积55㎡一居室约为2200余套;建筑面积80㎡两居室约为2300余套;建筑面积105㎡三居约为900余套,车位配比为1:1,小区为集中供暖。





加入东坝回迁房互动群:
扫描下方二维码拉您进东坝回迁房互动群:

户型图汇总:
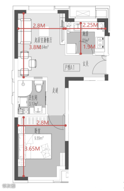
55㎡一居户型图






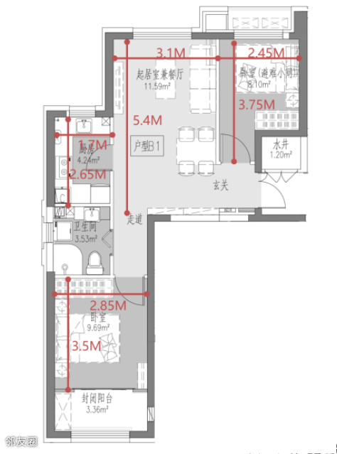
80㎡两居户型图








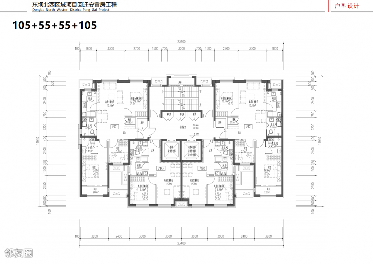
105㎡三居户型图





















下图所在楼栋位于三地块1#、2#、3#、六地块1#、2#、七地块1#、2#、5#、八地块1#、2#共计10栋楼。

下图所在楼栋位于三地块5#、6#、十地块3#等和剩余东西朝向楼栋共计11栋楼。

下图所在楼栋位于剩余楼栋共计20栋楼



参观选房大厅沙盘排次时间表
东坝西北区腾退指挥部电话:64362842
1、此表为各村村民参观选房大厅沙盘排次时间表。
2、每场次安排50人,上下午各一场,每场时间为2个小时。
3、原则上每腾退户出一人参观,做到腾退户全覆盖,村委会做好签到记录。
4、请各村指派一名负责人进行对接,做好现场组织、安全、秩序维护。
5、如有时间调整,另行通知

东坝西北区域定向安置房购买规定
一、定向安置房安置标准
被认定人口人均标准安置面积为50平方米。
应安置面积=认定人口×人均标准安置面积
二、各户型面积
一居室,户型面积50-55平方米;
两居室,户型面积75-80平方米;
三居室,户型面积100-105平方米。
三、安置房均价规定
被腾退人购买应安置面积部分,均价享受4300元/平方米的优惠价格购房。每户增加10平方米购房指标。因受安置房户型限制,导致购买实际面积超出应安置面积的,每户超出面积在10平方米以内的,按4300元/平方米的优惠价格购买;超出10平方米以外的,按8500元/平方米购买。
